Bản vẽ Biệt thự 2 tầng 15.4x11.7m (hồ sơ thi công kiến trúc, kết cấu)

[Mã file 174132]
  1 Đánh giá    Viết đánh giá
 2      213      1
Phí tải: 80 Xu (1Xu = 1.000đ)
Danh mục
Thể loại
Nhóm file
Ngày đăng
28-9-2025
Loại file
Full file
Dung lượng
13.1 MB
File đã kiểm thử
File đầy đủ và chi tiết

Biệt thự 2 tầng 15.4x11.7m. Hồ sơ thiết kế thi công hạng mục Kiến trúc, kết cấu, ảnh 3D ngoại thất. File Autocad và file PDF. Biệt thự đẹp, hồ sơ thiết kế rất tốt để tham khảo và thi công.


MÔ TẢ CHI TIẾT

Hồ sơ thiết kế bao gồm 3 phần:

1. Ảnh phối cảnh 3D ngoại thất công trình;

2. Phần Kiến trúc (Bản vẽ thiết kế chi tiết thi công);

3. Phần Kết cấu (Bản vẽ thiết kế chi tiết thi công);

 

Quy mô công trình bao gồm 2 tầng:

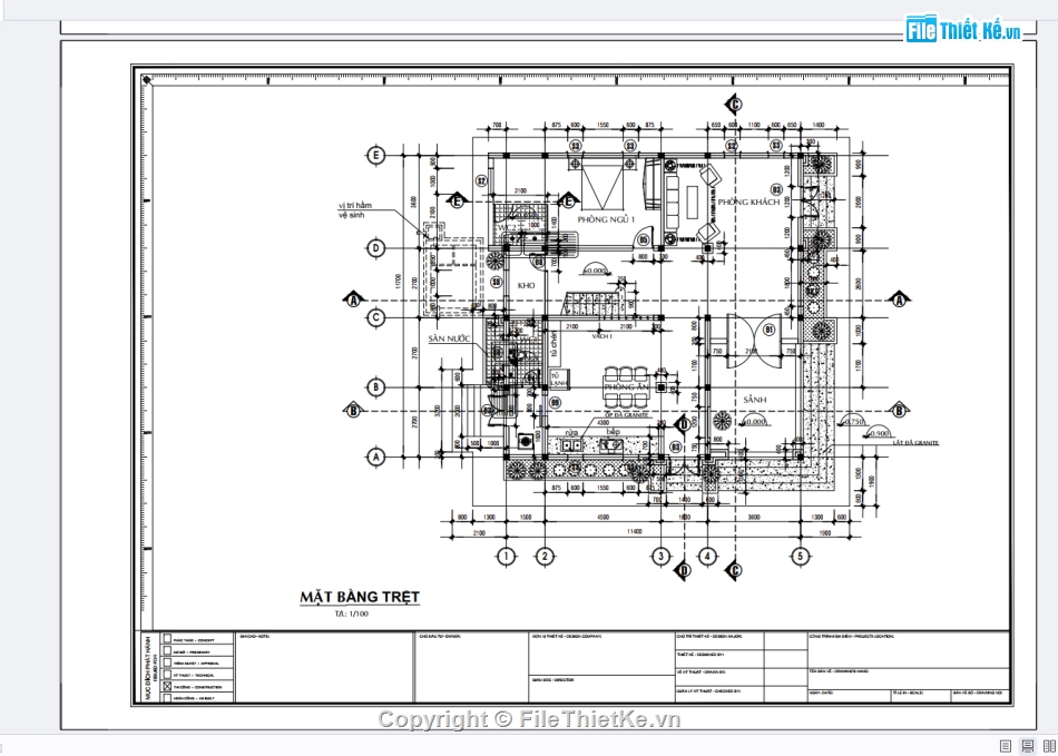
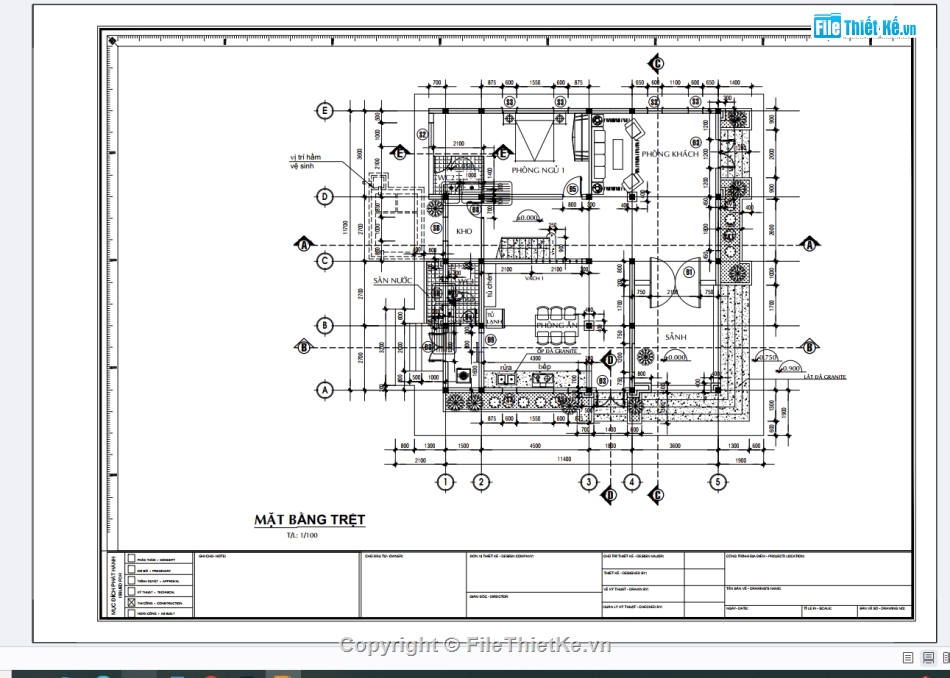
Tầng 1: Sảnh đón, phòng khách, phòng bếp ăn, phòng ngủ

Tầng 2: Phòng thờ, 3 phòng ngủ, sân thượng

 

HÌNH ẢNH DEMO

Biệt thự,kiến trúc 2 tầng,biệt thự 2 tầng

Biệt thự,kiến trúc 2 tầng,biệt thự 2 tầng

Biệt thự,kiến trúc 2 tầng,biệt thự 2 tầng

Biệt thự,kiến trúc 2 tầng,biệt thự 2 tầng

Biệt thự,kiến trúc 2 tầng,biệt thự 2 tầng

Biệt thự,kiến trúc 2 tầng,biệt thự 2 tầng

Nguồn: Filethietke.vn



LINK DOWNLOAD

BIỆT THỰ 2 TẦNG 15,4x11,7m.rar [13.1 MB]

File đã được kiểm thử
     Báo vi phạm bản quyền
Pass giải nén (Nếu có):
filethietke.vn
DOWNLOAD
(80 Xu)
Bạn có bản vẽ hay
ĐĂNG BÁN NGAY


BÌNH LUẬN



ĐÁNH GIÁ


ĐIỂM TRUNG BÌNH

5
1 Đánh giá
File rất tốt (1)
File tốt (0)
File rất hay (0)
File hay (0)
Bình thường (0)
Thành viên
Nội dung đánh giá
19:45 - 28/9/2025
File rất tốt
File rất tốt và phù hợp để tham khảo

 HỖ TRỢ TRỰC TUYẾN