Bản vẽ biệt thự 3 tầng 10.5x17m (full hồ sơ thi công kiến trúc, kết cấu, điện nước)

[Mã file 174259]
  1 Đánh giá    Viết đánh giá
 0      337      0
Phí tải: 150 Xu (1Xu = 1.000đ)
Danh mục
Thể loại
Nhóm file
Ngày đăng
02-10-2025
Loại file
Full file
Dung lượng
22.8 MB
File đã kiểm thử
File chất lượng
File đầy đủ và chi tiết

Biệt thự 3 tầng 10.5x17m với đầy đủ công năng, không gian hiện đại sang trọng. Hồ sơ thiết kế thi công hạng mục Kiến trúc, kết cấu, ảnh 3D ngoại thất. File Autocad và file PDF.


MÔ TẢ CHI TIẾT

Hồ sơ thiết kế bao gồm:

1. Ảnh phối cảnh 3D ngoại thất công trình;

2. Phần Kiến trúc (Bản vẽ thiết kế chi tiết thi công);

3. Phần Kết cấu (Bản vẽ thiết kế chi tiết thi công);

4. Phần Điện nước - Điều hòa thông gió, chiếu sáng (Bản vẽ thiết kế chi tiết thi công).

5. File PDF full hồ sơ thiết kế chi tiết thi công

 

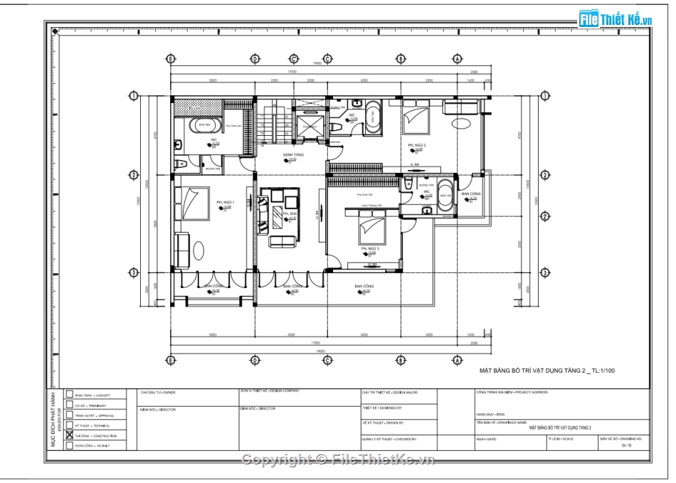
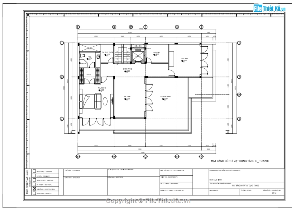
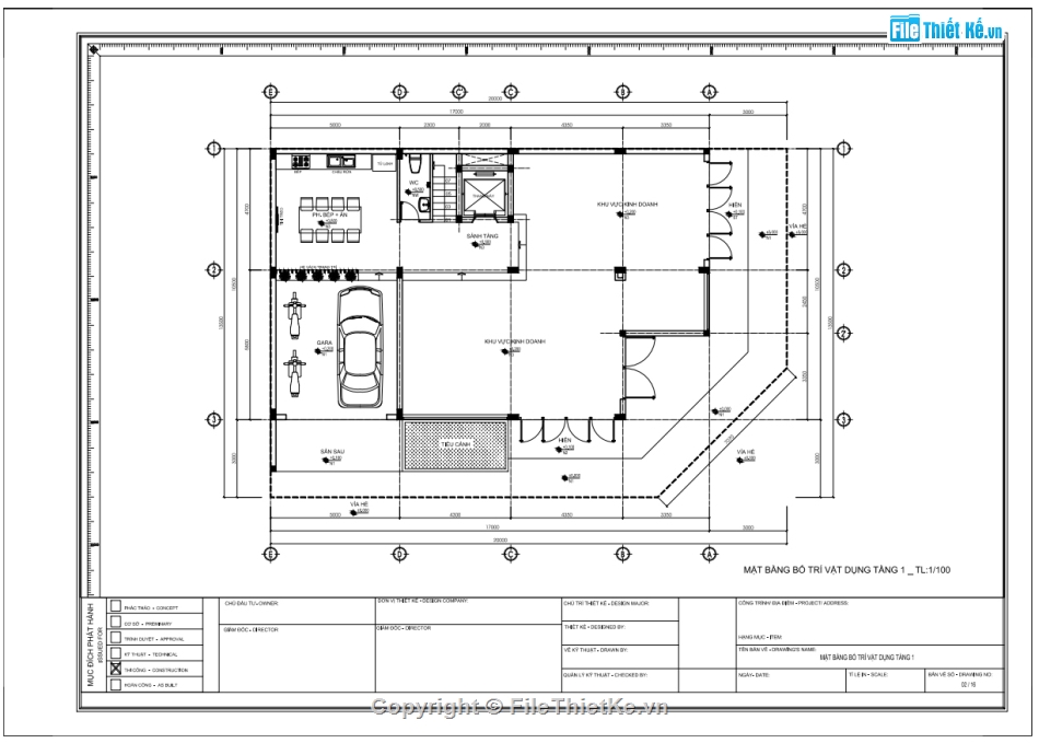
HÌNH ẢNH DEMO

Biệt thự 3 tầng,bản vẽ biệt thự 3 tầng,file cad biệt thự 3 tầng

Biệt thự 3 tầng,bản vẽ biệt thự 3 tầng,file cad biệt thự 3 tầng

Biệt thự 3 tầng,bản vẽ biệt thự 3 tầng,file cad biệt thự 3 tầng

Biệt thự 3 tầng,bản vẽ biệt thự 3 tầng,file cad biệt thự 3 tầng

Biệt thự 3 tầng,bản vẽ biệt thự 3 tầng,file cad biệt thự 3 tầng

Biệt thự 3 tầng,bản vẽ biệt thự 3 tầng,file cad biệt thự 3 tầng

Biệt thự 3 tầng,bản vẽ biệt thự 3 tầng,file cad biệt thự 3 tầng

Nguồn: Filethietke.vn



LINK DOWNLOAD

BIỆT THỰ 3 TẦNG 10,5x17m.rar [22.8 MB]

File đã được kiểm thử
     Báo vi phạm bản quyền
Pass giải nén (Nếu có):
filethietke.vn
DOWNLOAD
(150 Xu)
Bạn có bản vẽ hay
ĐĂNG BÁN NGAY


BÌNH LUẬN



ĐÁNH GIÁ


ĐIỂM TRUNG BÌNH

5
1 Đánh giá
File rất tốt (1)
File tốt (0)
File rất hay (0)
File hay (0)
Bình thường (0)
Thành viên
Nội dung đánh giá
02:41 - 2/10/2025
File rất tốt
File rất tốt và phù hợp để tham khảo

 HỖ TRỢ TRỰC TUYẾN