Bản vẽ Biệt thự 3 tầng 13.5x17m (full hồ sơ thi công kiến trúc, kết cấu, điện nước autocad và PDF)

[Mã file 174210]
  1 Đánh giá    Viết đánh giá
 0      271      2
Phí tải: 350 Xu (1Xu = 1.000đ)
Danh mục
Thể loại
Nhóm file
Ngày đăng
01-10-2025
Loại file
Full file
Dung lượng
26.5 MB
File đã kiểm thử
File chất lượng
File đầy đủ và chi tiết

Biệt thự rất đẳng cấp 13.5x17m với đầy đủ công năng, không gian hiện đại sang trọng. Hồ sơ thiết kế thi công hạng mục Kiến trúc, kết cấu, ảnh 3D ngoại thất. File Autocad và file PDF.


MÔ TẢ CHI TIẾT

Hồ sơ thiết kế bao gồm:

1. Ảnh phối cảnh 3D ngoại thất công trình;

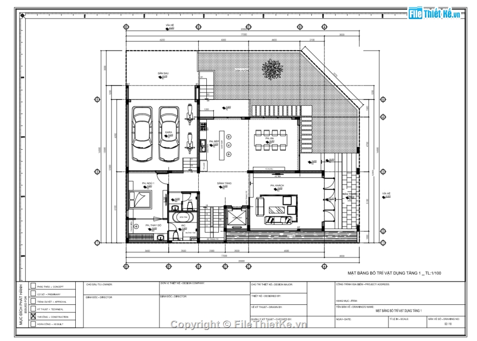
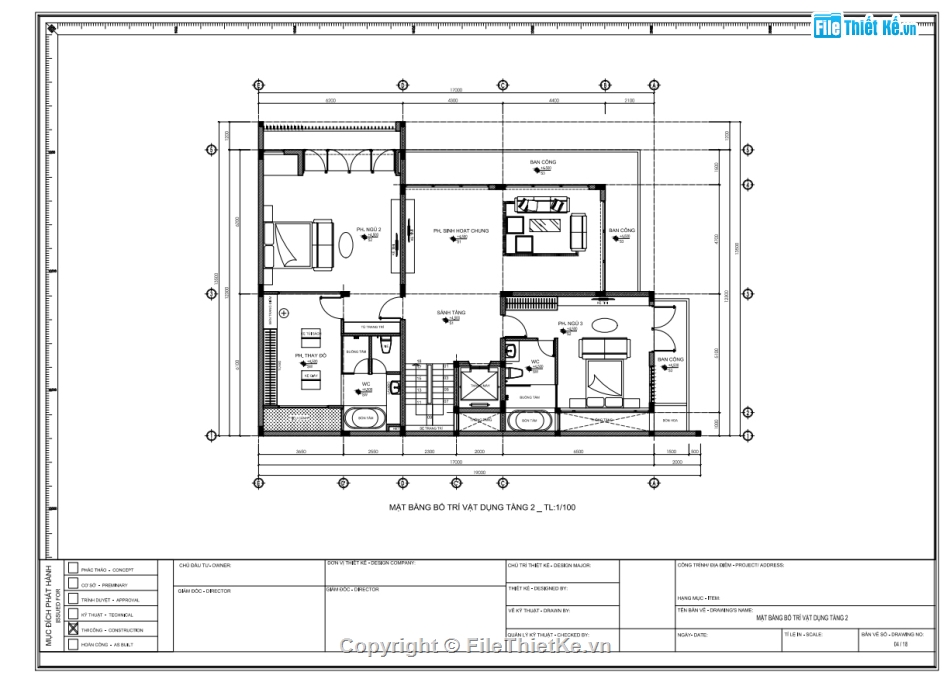
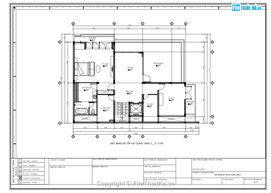
2. Phần Kiến trúc (Bản vẽ thiết kế chi tiết thi công);

3. Phần Kết cấu (Bản vẽ thiết kế chi tiết thi công);

4. Phần Điện nước - Điều hòa thông gió, chiếu sáng (Bản vẽ thiết kế chi tiết thi công).

5. File PDF full hồ sơ thiết kế chi tiết thi công

 

HÌNH ẢNH DEMO

Biệt thự 3 tầng,Bản vẽ full,thi công

Biệt thự 3 tầng,Bản vẽ full,thi công

Biệt thự 3 tầng,Bản vẽ full,thi công

Biệt thự 3 tầng,Bản vẽ full,thi công

Biệt thự 3 tầng,Bản vẽ full,thi công

Biệt thự 3 tầng,Bản vẽ full,thi công

Biệt thự 3 tầng,Bản vẽ full,thi công

Biệt thự 3 tầng,Bản vẽ full,thi công

Nguồn: Filethietke.vn



LINK DOWNLOAD

BIỆT THỰ ĐẲNG CẤP 13,5x17m.rar [26.5 MB]

File đã được kiểm thử
     Báo vi phạm bản quyền
Pass giải nén (Nếu có):
filethietke.vn
DOWNLOAD
(350 Xu)
Bạn có bản vẽ hay
ĐĂNG BÁN NGAY


BÌNH LUẬN



ĐÁNH GIÁ


ĐIỂM TRUNG BÌNH

5
1 Đánh giá
File rất tốt (1)
File tốt (0)
File rất hay (0)
File hay (0)
Bình thường (0)
Thành viên
Nội dung đánh giá
05:57 - 1/10/2025
File rất tốt
File rất tốt và phù hợp để tham khảo

 HỖ TRỢ TRỰC TUYẾN