Bản vẽ Cad chế tạo full tủ điện của 1 dự án chung cư cao tầng

[Mã file 182686]
  1 Đánh giá    Viết đánh giá
 0      133      0
Phí tải: 69 Xu (1Xu = 1.000đ)
Danh mục
Thể loại
Nhóm file
Ngày đăng
06-11-2025
Loại file
Full file
Dung lượng
6.4 MB

Bản vẽ file CAD chi tiết cấu tạo đầy đủ các tủ điện của dự án chung cư cao tầng ở Cầu Giấy


MÔ TẢ CHI TIẾT

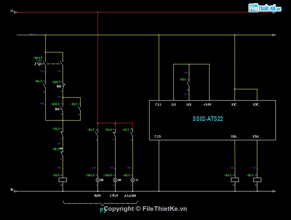
bản vẽ CAD các tủ điện của 1 chung cư cao tầng như tủ tổng MSB, tủ chiếu sáng hành lang, tủ công tơ, tủ ATS, tủ bơm nước chữa cháy, bơm thoát sàn, bơm sinh hoạt, bơm tăng áp.... Gồm có:

  1. bản vẽ layout mặt tủ,

  2. bản vẽ layout thiết bị trong tủ,

  3. bản vẽ sơ đồ nguyên lý mạch động lực, 

  4. sơ đồ nguyên lý mạch điều khiển.

 

HÌNH ẢNH DEMO

bản vẽ shop tủ điện,bản vẽ cad tủ điện,bản vẽ tủ điện

bản vẽ shop tủ điện,bản vẽ cad tủ điện,bản vẽ tủ điện

bản vẽ shop tủ điện,bản vẽ cad tủ điện,bản vẽ tủ điện

bản vẽ shop tủ điện,bản vẽ cad tủ điện,bản vẽ tủ điện

bản vẽ shop tủ điện,bản vẽ cad tủ điện,bản vẽ tủ điện

bản vẽ shop tủ điện,bản vẽ cad tủ điện,bản vẽ tủ điện

Nguồn: Filethietke.vn



LINK DOWNLOAD

Bản vẽ chế tạo tủ điện chung cư cao tầng.dwg [6.4 MB]

File đã được kiểm thử
     Báo vi phạm bản quyền
Pass giải nén (Nếu có):
filethietke.vn
DOWNLOAD
(69 Xu)
Bạn có bản vẽ hay
ĐĂNG BÁN NGAY


BÌNH LUẬN



ĐÁNH GIÁ


ĐIỂM TRUNG BÌNH

5
1 Đánh giá
File rất tốt (1)
File tốt (0)
File rất hay (0)
File hay (0)
Bình thường (0)
Thành viên
Nội dung đánh giá
14:56 - 6/11/2025
File rất tốt
File rất tốt và phù hợp để tham khảo

 HỖ TRỢ TRỰC TUYẾN