Bản vẽ CAD kiến trúc hoàn thiện mẫu nhà phố 3 tầng mái Thái 4.5x20m

[Mã file 186785]
  1 Đánh giá    Viết đánh giá
 0      74      0
Phí tải: 10 Xu (1Xu = 1.000đ)
Danh mục
Thể loại
Nhóm file
Ngày đăng
21-11-2025
Loại file
Full file
Dung lượng
3.3 MB

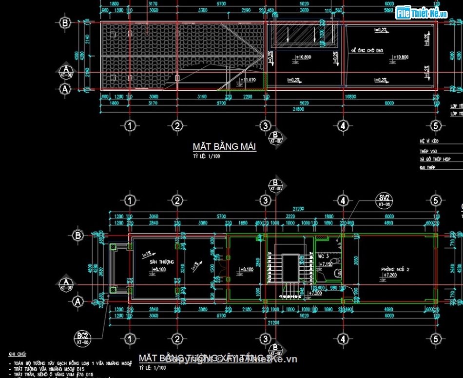
Bản vẽ CAD kiến trúc hoàn thiện mẫu nhà phố 3 tầng mái Thái 4.5x20m tầng 1 là văn phòng kinh doanh


MÔ TẢ CHI TIẾT

Bản vẽ CAD kiến trúc hoàn thiện mẫu nhà phố 3 tầng mái Thái 4.5x20m

tầng 1 là văn phòng kinh doanh + wc

tầng 2 là khu SHC+bếp ăn, WC, P ngủ

tầng 3 là P ngủ , WC, sân phơi

 

 

HÌNH ẢNH DEMO

nhà phố 3 tầng,Bản vẽ nhà phố,bản vẽ kiến trúc nhà phố

nhà phố 3 tầng,Bản vẽ nhà phố,bản vẽ kiến trúc nhà phố

nhà phố 3 tầng,Bản vẽ nhà phố,bản vẽ kiến trúc nhà phố

nhà phố 3 tầng,Bản vẽ nhà phố,bản vẽ kiến trúc nhà phố

nhà phố 3 tầng,Bản vẽ nhà phố,bản vẽ kiến trúc nhà phố

nhà phố 3 tầng,Bản vẽ nhà phố,bản vẽ kiến trúc nhà phố

Nguồn: Filethietke.vn



LINK DOWNLOAD

nha 3 tang 4,5x20 KT hoan thien.rar [3.3 MB]

File đã được kiểm thử
     Báo vi phạm bản quyền
Pass giải nén (Nếu có):
filethietke.vn
DOWNLOAD
(10 Xu)
Bạn có bản vẽ hay
ĐĂNG BÁN NGAY


BÌNH LUẬN



ĐÁNH GIÁ


ĐIỂM TRUNG BÌNH

5
1 Đánh giá
File rất tốt (1)
File tốt (0)
File rất hay (0)
File hay (0)
Bình thường (0)
Thành viên
Nội dung đánh giá
17:10 - 21/11/2025
File rất tốt
File rất tốt và phù hợp để tham khảo

 HỖ TRỢ TRỰC TUYẾN