Bản vẽ CAD thiết kế hệ thống điện, điên nhẹ, trạm biến áp nhà máy MS VINA Bắc Ninh

[Mã file 187950]
  1 Đánh giá    Viết đánh giá
 0      29      0
Phí tải: 20 Xu (1Xu = 1.000đ)
Danh mục
Thể loại
Nhóm file
Ngày đăng
27-11-2025
Loại file
Full file
Dung lượng
26.9 MB

Bản vẽ CAD thiết kế hệ thống điện, điên nhẹ, trạm biến áp nhà máy MS VINA Bắc Ninh 50x80m


MÔ TẢ CHI TIẾT

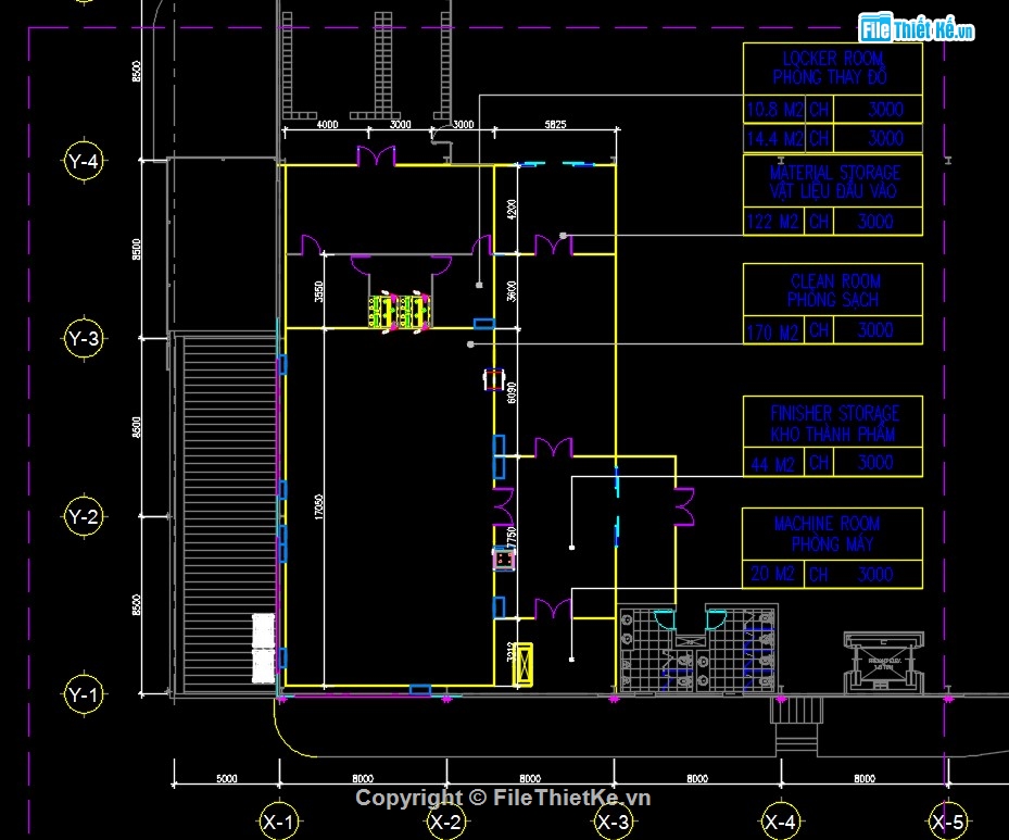
Bản vẽ CAD thiết kế hệ thống điện, điên nhẹ, trạm biến áp nhà máy MS VINA Bắc Ninh với quy mô 50x80m, 2 tầng

gồm các bản vẽ thiết kế phòng sạch, bản vẽ bố trí chiếu sáng, ổ cắm, camera , âm thanh, LAN TEL, trạm biến áp, sơ đồ nguyên lý

 

HÌNH ẢNH DEMO

bản vẽ điện nhà máy,bản vẽ MEP nhà máy,bản vẽ cad hệ thống điện nhà máy

bản vẽ điện nhà máy,bản vẽ MEP nhà máy,bản vẽ cad hệ thống điện nhà máy

bản vẽ điện nhà máy,bản vẽ MEP nhà máy,bản vẽ cad hệ thống điện nhà máy

bản vẽ điện nhà máy,bản vẽ MEP nhà máy,bản vẽ cad hệ thống điện nhà máy

bản vẽ điện nhà máy,bản vẽ MEP nhà máy,bản vẽ cad hệ thống điện nhà máy

bản vẽ điện nhà máy,bản vẽ MEP nhà máy,bản vẽ cad hệ thống điện nhà máy

Nguồn: Filethietke.vn



LINK DOWNLOAD

8. Bản vẽ điện, trạm, điện nhẹ Dự án Fine MS ViNa- Bắc Ninh.rar [26.9 MB]

File đã được kiểm thử
     Báo vi phạm bản quyền
Pass giải nén (Nếu có):
filethietke.vn
DOWNLOAD
(20 Xu)
Bạn có bản vẽ hay
ĐĂNG BÁN NGAY


BÌNH LUẬN



ĐÁNH GIÁ


ĐIỂM TRUNG BÌNH

5
1 Đánh giá
File rất tốt (1)
File tốt (0)
File rất hay (0)
File hay (0)
Bình thường (0)
Thành viên
Nội dung đánh giá
09:49 - 27/11/2025
File rất tốt
File rất tốt và phù hợp để tham khảo

 HỖ TRỢ TRỰC TUYẾN