Bản vẽ kết cấu công trình pccc

[Mã file 13197]
  1 Đánh giá    Viết đánh giá
 1      1986      4
Phí tải: 80 Xu (1Xu = 1.000đ)
Danh mục
Thể loại
Nhóm file
Ngày đăng
24-3-2018
Loại file
Full file
Dung lượng
32.3 MB

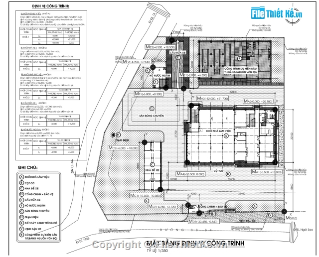
Bản vẽ tổng thề và kết cấu công trình pccc bình dương đã được thi công và bàn giao đưa vào sử dụng


MÔ TẢ CHI TIẾT

bản vẽ tổng thề và kết cấu công trình pccc bình dương đã được thi công và bàn giao đưa vào sử dụng

 

HÌNH ẢNH DEMO

công trình,kết cấu công trình,bản vẽ công trình,bản vẽ kết cấu

công trình,kết cấu công trình,bản vẽ công trình,bản vẽ kết cấu

công trình,kết cấu công trình,bản vẽ công trình,bản vẽ kết cấu

Nguồn: Filethietke.vn



LINK DOWNLOAD

FILE BAN VE PCCC BINH THANG.rar [32.3 MB]

File đã được kiểm thử
     Báo vi phạm bản quyền
Pass giải nén (Nếu có):
filethietke.vn
DOWNLOAD
(80 Xu)
Bạn có bản vẽ hay
ĐĂNG BÁN NGAY


BÌNH LUẬN



ĐÁNH GIÁ


ĐIỂM TRUNG BÌNH

5
1 Đánh giá
File rất tốt (1)
File tốt (0)
File rất hay (0)
File hay (0)
Bình thường (0)
Thành viên
Nội dung đánh giá
15:02 - 24/3/2018
File rất tốt
File rất tốt và phù hợp để tham khảo

 HỖ TRỢ TRỰC TUYẾN