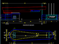
Bản vẽ thiết kế cổng trường mầm non kích thước rộng 7.2m x cao 7.1m

[Mã file 118793]
  1 Đánh giá    Viết đánh giá
 0      890      0
Phí tải: 5 Xu (1Xu = 1.000đ)
Danh mục
Thể loại
Nhóm file
Ngày đăng
13-3-2024
Loại file
Full file
Dung lượng
1.83 MB

Bản vẽ autocad kiến trúc và kết cấu cổng chính trường mầm non không có cổng phụ, kết cấu bê tông cốt thép


MÔ TẢ CHI TIẾT

bản vẽ autocad thiết kế cổng chính trường mầm non

-Kích thước cổng chính rộng 7.2m x cao 7.1m

-kết cấu cổng đổ bê tông cốt thép toàn bộ, xây ốp trụ cổng bằng gạch để tạo hình khối kiến trúc

-Cánh cổng bằng thép hộp sơn công nghiệp 03 nước

-Biển tên trường bằng chữ aluminium

-Bản vẽ gồm bản vẽ kiến trúc và bản vẽ kết cấu

-số lượng 05 bản

-hồ sơ đã triển khai thi công thực tế

 

HÌNH ẢNH DEMO

bản vẽ cổng,bản vẽ thiết kế trường mầm non,bản vẽ cổng trường mầm non đẹp,bản vẽ cổng trường đẹp,bản vẽ cổng đẹp

bản vẽ cổng,bản vẽ thiết kế trường mầm non,bản vẽ cổng trường mầm non đẹp,bản vẽ cổng trường đẹp,bản vẽ cổng đẹp

bản vẽ cổng,bản vẽ thiết kế trường mầm non,bản vẽ cổng trường mầm non đẹp,bản vẽ cổng trường đẹp,bản vẽ cổng đẹp

bản vẽ cổng,bản vẽ thiết kế trường mầm non,bản vẽ cổng trường mầm non đẹp,bản vẽ cổng trường đẹp,bản vẽ cổng đẹp

bản vẽ cổng,bản vẽ thiết kế trường mầm non,bản vẽ cổng trường mầm non đẹp,bản vẽ cổng trường đẹp,bản vẽ cổng đẹp

Nguồn: Filethietke.vn



LINK DOWNLOAD

cong truong mam non.zip [1.83 MB]

File đã được kiểm thử
     Báo vi phạm bản quyền
Pass giải nén (Nếu có):
filethietke.vn
DOWNLOAD
(5 Xu)
Bạn có bản vẽ hay
ĐĂNG BÁN NGAY


BÌNH LUẬN



ĐÁNH GIÁ


ĐIỂM TRUNG BÌNH

5
1 Đánh giá
File rất tốt (1)
File tốt (0)
File rất hay (0)
File hay (0)
Bình thường (0)
Thành viên
Nội dung đánh giá
11:33 - 13/3/2024
File rất tốt
File rất tốt và phù hợp để tham khảo

 HỖ TRỢ TRỰC TUYẾN