Biệt thự tân cổ điển 1 tầng hầm, 3 tầng nổi, 1 tầng áp mái kích thước 10.7x16.45m

[Mã file 138038]
  1 Đánh giá    Viết đánh giá
 1      371      0
Phí tải: 70 Xu (1Xu = 1.000đ)
Danh mục
Thể loại
Nhóm file
Ngày đăng
16-4-2025
Loại file
Full file
Dung lượng
76.5 MB

Full hồ sơ thiết kế kiến trúc, kết cấu, điện nước biệt thự 1 tầng hầm 3 tầng nổi 1 tầng áp mái đẹp nhất 2025


MÔ TẢ CHI TIẾT

File cad full kiến trúc, kết cấu, điện, nước, biệt thự nhà 1 tầng hầm, 3 tầng nổi, 1 áp mái gồm:

Bản vẽ kiến trúc bao gồm :

-Mặt bằng bố trí công năng tầng hầm gồm P.giúp việc, P. kho, P. Hát gia đình, sảnh, P.sinh hoạt chung, p để rượu

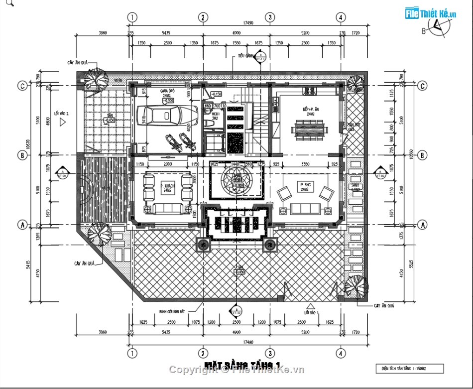
-Mặt bằng bố trí công năng tầng 1 gồm Tiền sảnh, ga ra ô tô, WC1, P.bếp+ăn, P.Sinh hoạt chung, sảnh, P. Khách

-Mặt bằng bố trí công năng tầng 2 gồm P. Ngủ 1. WC2, WC3, WC master 1, phòng ngủ master 1, ban công, sảnh tầng, P.Đọc sách

-Mặt bằng bố trí công năng tầng 3 gồm  P.ngủ 2, WC4, P. thay đồ. WC master, P. ngủ master 2, sảnh tầng, P.ngủ 3, WC5

-Mặt bằng bố trí công năng tầng áp mái gồm P. thờ, kho, sân phơi, vườn mái, sảnh tầng, vườn mái

-Các file cad kết cấu, điện, nước

 

HÌNH ẢNH DEMO

bản vẽ biệt thự tân cổ điển full,biệt thự cổ đại,mẫu biệt thự pháp sang trọng,biệt thự 1 tầng hầm 3 tầng nổi,biệt thự tân cổ điển có hầm,biệt thự tân cổ điển 3 tầng nổi

bản vẽ biệt thự tân cổ điển full,biệt thự cổ đại,mẫu biệt thự pháp sang trọng,biệt thự 1 tầng hầm 3 tầng nổi,biệt thự tân cổ điển có hầm,biệt thự tân cổ điển 3 tầng nổi

bản vẽ biệt thự tân cổ điển full,biệt thự cổ đại,mẫu biệt thự pháp sang trọng,biệt thự 1 tầng hầm 3 tầng nổi,biệt thự tân cổ điển có hầm,biệt thự tân cổ điển 3 tầng nổi

bản vẽ biệt thự tân cổ điển full,biệt thự cổ đại,mẫu biệt thự pháp sang trọng,biệt thự 1 tầng hầm 3 tầng nổi,biệt thự tân cổ điển có hầm,biệt thự tân cổ điển 3 tầng nổi

bản vẽ biệt thự tân cổ điển full,biệt thự cổ đại,mẫu biệt thự pháp sang trọng,biệt thự 1 tầng hầm 3 tầng nổi,biệt thự tân cổ điển có hầm,biệt thự tân cổ điển 3 tầng nổi

bản vẽ biệt thự tân cổ điển full,biệt thự cổ đại,mẫu biệt thự pháp sang trọng,biệt thự 1 tầng hầm 3 tầng nổi,biệt thự tân cổ điển có hầm,biệt thự tân cổ điển 3 tầng nổi

bản vẽ biệt thự tân cổ điển full,biệt thự cổ đại,mẫu biệt thự pháp sang trọng,biệt thự 1 tầng hầm 3 tầng nổi,biệt thự tân cổ điển có hầm,biệt thự tân cổ điển 3 tầng nổi

bản vẽ biệt thự tân cổ điển full,biệt thự cổ đại,mẫu biệt thự pháp sang trọng,biệt thự 1 tầng hầm 3 tầng nổi,biệt thự tân cổ điển có hầm,biệt thự tân cổ điển 3 tầng nổi

bản vẽ biệt thự tân cổ điển full,biệt thự cổ đại,mẫu biệt thự pháp sang trọng,biệt thự 1 tầng hầm 3 tầng nổi,biệt thự tân cổ điển có hầm,biệt thự tân cổ điển 3 tầng nổi

bản vẽ biệt thự tân cổ điển full,biệt thự cổ đại,mẫu biệt thự pháp sang trọng,biệt thự 1 tầng hầm 3 tầng nổi,biệt thự tân cổ điển có hầm,biệt thự tân cổ điển 3 tầng nổi

Nguồn: Filethietke.vn



LINK DOWNLOAD

9 Dinh thu Nam Tu Liem-20250417T012609Z-001.zip [76.5 MB]

File đã được kiểm thử
     Báo vi phạm bản quyền
Pass giải nén (Nếu có):
filethietke.vn
DOWNLOAD
(70 Xu)
Bạn có bản vẽ hay
ĐĂNG BÁN NGAY


BÌNH LUẬN



ĐÁNH GIÁ


ĐIỂM TRUNG BÌNH

5
1 Đánh giá
File rất tốt (1)
File tốt (0)
File rất hay (0)
File hay (0)
Bình thường (0)
Thành viên
Nội dung đánh giá
20:48 - 16/4/2025
File rất tốt
File rất tốt và phù hợp để tham khảo

 HỖ TRỢ TRỰC TUYẾN