Chi tiết cửa nhôm - cửa gỗ kính biệt thự

[Mã file 176520]
  1 Đánh giá    Viết đánh giá
 0      101      0
Phí tải: 25 Xu (1Xu = 1.000đ)
Danh mục
Thể loại
Nhóm file
Ngày đăng
23-10-2025
Loại file
Full file
Dung lượng
620 KB

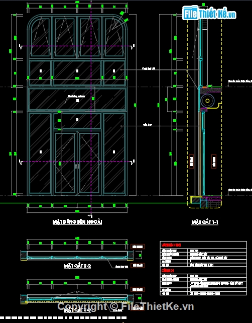
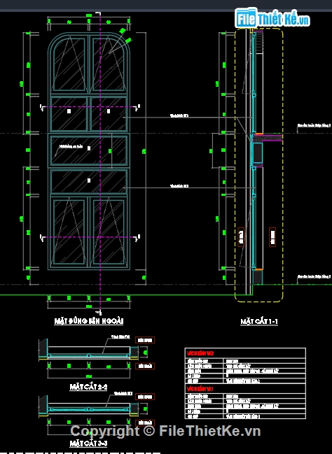
File “Chi tiết cửa nhôm – cửa gỗ kính biệt thự” bao gồm bản vẽ CAD chi tiết cấu tạo các loại cửa đi, cửa sổ, cửa lùa bằng nhôm kính và cửa gỗ kính cao cấp dành cho biệt thự. Hồ sơ thể hiện rõ cấu tạo


MÔ TẢ CHI TIẾT

File “Chi tiết cửa nhôm – cửa gỗ kính biệt thự” bao gồm bản vẽ CAD chi tiết cấu tạo các loại cửa đi, cửa sổ, cửa lùa bằng nhôm kính và cửa gỗ kính cao cấp dành cho biệt thự. Hồ sơ thể hiện rõ cấu tạo khung, nẹp, ron, bản lề, tay nắm, ray trượt và vật liệu hoàn thiện. Phù hợp cho thiết kế, thi công và tham khảo trong các công trình nhà ở cao cấp, giúp đảm bảo độ chính xác, tính thẩm mỹ và công năng sử dụng tối ưu.

 
 

 

HÌNH ẢNH DEMO

cửa nhôm kính,cửa biệt thự,cửa gỗ biệt thự

cửa nhôm kính,cửa biệt thự,cửa gỗ biệt thự

cửa nhôm kính,cửa biệt thự,cửa gỗ biệt thự

cửa nhôm kính,cửa biệt thự,cửa gỗ biệt thự

cửa nhôm kính,cửa biệt thự,cửa gỗ biệt thự

cửa nhôm kính,cửa biệt thự,cửa gỗ biệt thự

cửa nhôm kính,cửa biệt thự,cửa gỗ biệt thự

cửa nhôm kính,cửa biệt thự,cửa gỗ biệt thự

Nguồn: Filethietke.vn



LINK DOWNLOAD

05.CHI TIET CUA.dwg [620 KB]

File đã được kiểm thử
     Báo vi phạm bản quyền
Pass giải nén (Nếu có):
filethietke.vn
DOWNLOAD
(25 Xu)
Bạn có bản vẽ hay
ĐĂNG BÁN NGAY


BÌNH LUẬN



ĐÁNH GIÁ


ĐIỂM TRUNG BÌNH

5
1 Đánh giá
File rất tốt (1)
File tốt (0)
File rất hay (0)
File hay (0)
Bình thường (0)
Thành viên
Nội dung đánh giá
10:14 - 23/10/2025
File rất tốt
File rất tốt và phù hợp để tham khảo

 HỖ TRỢ TRỰC TUYẾN