Full Autocad pdf nhà phố hiện đại 7x12m. Hồ sơ thi công kiến trúc, kết cấu, điện nước.

[Mã file 174384]
  1 Đánh giá    Viết đánh giá
 0      97      0
Phí tải: 80 Xu (1Xu = 1.000đ)
Danh mục
Thể loại
Nhóm file
Ngày đăng
12-10-2025
Loại file
Full file
Dung lượng
6 MB
File đã kiểm thử
File đầy đủ và chi tiết

Bản vẽ thiết kế Nhà phố 2 tầng hiện đại 7x12m với đầy đủ mọi công năng sử dụng. Hồ sơ thiết kế thi công Full Kiến trúc, kết cấu, điện nước. File Autocad và PDF, phù hợp để tham khảo và thi công.


MÔ TẢ CHI TIẾT

Hồ sơ thiết kế bao gồm:

1. Phối cảnh 3D ngoại thất;

2. Phần Kiến trúc (Bản vẽ thiết kế chi tiết thi công);

3. Phần Kết cấu (Bản vẽ thiết kế chi tiết thi công);

4. Phần cấp điện, cấp thoát nước (Bản vẽ thiết kế chi tiết thi công).

 

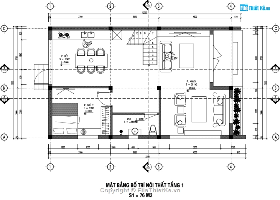
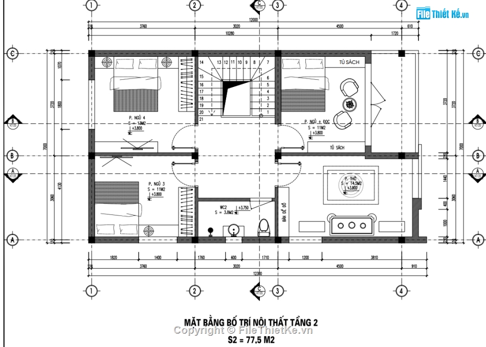
Quy mô công trình 2 tầng:

Tầng 1: Phòng khách, phòng bếp, phòng ăn, phòng ngủ

Tầng 2: 3 phòng ngủ, 1 phòng thờ

 

 

HÌNH ẢNH DEMO

Hồ sơ kiến trúc,kết cấu,thi công

Hồ sơ kiến trúc,kết cấu,thi công

Hồ sơ kiến trúc,kết cấu,thi công

Hồ sơ kiến trúc,kết cấu,thi công

Hồ sơ kiến trúc,kết cấu,thi công

Hồ sơ kiến trúc,kết cấu,thi công

Hồ sơ kiến trúc,kết cấu,thi công

Nguồn: Filethietke.vn



LINK DOWNLOAD

NHÀ PHỐ 2 TẦNG 7x12m.rar [6 MB]

File đã được kiểm thử
     Báo vi phạm bản quyền
Pass giải nén (Nếu có):
filethietke.vn
DOWNLOAD
(80 Xu)
Bạn có bản vẽ hay
ĐĂNG BÁN NGAY


BÌNH LUẬN



ĐÁNH GIÁ


ĐIỂM TRUNG BÌNH

5
1 Đánh giá
File rất tốt (1)
File tốt (0)
File rất hay (0)
File hay (0)
Bình thường (0)
Thành viên
Nội dung đánh giá
14:41 - 12/10/2025
File rất tốt
File rất tốt và phù hợp để tham khảo

 HỖ TRỢ TRỰC TUYẾN