Kết Cấu Bể Lọc Nước chuẩn file cad

[Mã file 176514]
  1 Đánh giá    Viết đánh giá
 0      6      0
Phí tải: 10 Xu (1Xu = 1.000đ)
Danh mục
Thể loại
Nhóm file
Ngày đăng
23-10-2025
Loại file
Full file
Dung lượng
284 KB

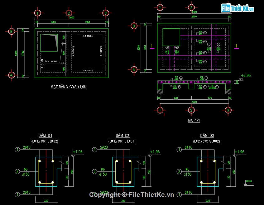
File “Kết Cấu Bể Lọc Nước” bao gồm bản vẽ CAD chi tiết cấu tạo bể lọc nước dùng trong công trình dân dụng và công nghiệp, thể hiện đầy đủ móng, tường, sàn, dầm, thép gia cường, ống dẫn và chi tiết kỹ


MÔ TẢ CHI TIẾT

File “Kết Cấu Bể Lọc Nước” bao gồm bản vẽ CAD chi tiết cấu tạo bể lọc nước dùng trong công trình dân dụng và công nghiệp, thể hiện đầy đủ móng, tường, sàn, dầm, thép gia cường, ống dẫn và chi tiết kỹ

 

HÌNH ẢNH DEMO

Bể lọc nước,bể nước,kết cấu bể nước,bể nước file cad

Bể lọc nước,bể nước,kết cấu bể nước,bể nước file cad

Bể lọc nước,bể nước,kết cấu bể nước,bể nước file cad

Bể lọc nước,bể nước,kết cấu bể nước,bể nước file cad

Nguồn: Filethietke.vn



LINK DOWNLOAD

10.BE LOC NUOC.dwg [284 KB]

File đã được kiểm thử
     Báo vi phạm bản quyền
Pass giải nén (Nếu có):
filethietke.vn
DOWNLOAD
(10 Xu)
Bạn có bản vẽ hay
ĐĂNG BÁN NGAY


BÌNH LUẬN



ĐÁNH GIÁ


ĐIỂM TRUNG BÌNH

5
1 Đánh giá
File rất tốt (1)
File tốt (0)
File rất hay (0)
File hay (0)
Bình thường (0)
Thành viên
Nội dung đánh giá
09:44 - 23/10/2025
File rất tốt
File rất tốt và phù hợp để tham khảo

 HỖ TRỢ TRỰC TUYẾN